Plan- & Modelloutput
Welche Projektdaten kann ich bekommen?
dosch arbeitet eng mit der Firma Miviso zusammen

3D CAD Modelle
Die CAD-Modelle sind optimal für Sanierungen, Umbauten und die Integration in CAFM-Systeme, wodurch der Gebäudebetrieb langfristig optimiert wird. Alle Modellanforderungen – vom individuellen LOD-Mix bis hin zu spezifischen Modellierungsrichtlinien – werden je nach Bedarf umgesetzt.
Unsere erfahrenen Scan-to-CAD/BIM-Experten erstellen aus hochauflösenden Punktwolken exakte 3D-Modelle von Bestandsgebäuden in ArchiCAD, Revit oder Vectorworks. Architekten, Ingenieure, Planer und Bauherren profitieren von einem detailgetreuen digitalen Abbild, das eine präzise und effiziente Planung ermöglicht.

2D CAD Pläne
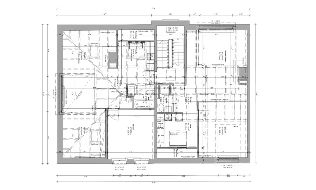
Ob Grundrisse, Schnitte oder Ansichten – CAD-Pläne liefern eine verlässliche Planungsgrundlage für Architekten, Planer und Bauherren. Sie sind ideal für Sanierungen, Bauanträge oder Bestandsdokumentationen und sorgen für eine reibungslose Umsetzung von Projekten. Individuelle Anforderungen werden flexibel nach Wunsch umgesetzt.
Aus hochauflösenden Punktwolken erstellen unsere erfahrenen Scan-to-CAD Experten präzise 2D-Pläne von Bestandsgebäuden.

TGA Modelle Industrie
Alle relevanten technischen Gewerke – von Lüftung und Heizung bis hin zu Elektroleitungen sowie Anlagen und Maschinen – werden detailliert erfasst und als CAD/BIM-Modelle aufgebaut. Dies ermöglicht die Planung, Instandhaltung und Erweiterung von Gebäudetechnik sowie Anlagen. Individuelle Detaillierungsgrade und Informationsgehalt/Attributierung werden nach Bedarf umgesetzt.
Unsere Ingenieure und Gebäudetechnik- Experten erstellen aus Punktwolken und Planunterlagen TGA-Modelle bestehender Industrieanlagen.

Digitale Geländemodelle
Geländemodelle liefern verlässliche Informationen für Bauprojekte, Infrastrukturmassnahmen oder sonstige Analysen. Die topografische Darstellungen und Modellierung mit CAD- Objekten ermöglicht eine effiziente und präzise Planung. Unsere Modelle sind kompatibel mit gängigen CAD- Systemen und werden individuell an projektbezogene Anforderungen angepasst.
Durch die Auswertung von Laserscan- und Drohnendaten werden digitale Geländemodelle in der gewünschten CAD Software erstellt.
Scan2BIM LOD Definition
Für die Modellierung von Bestandsgebäuden sind präzise Anforderungen an Geometrie und Informationsgehalt entscheidend. Die Miviso Scan2BIM LOD Definition bietet eine transparente Grundlage für die Entwicklungsstufen LOD 200 bis 400 – abgestimmt auf reale Projektanforderungen.
Sie unterstützt Architekten, Ingenieure und Vermesser dabei, Erwartungen zu klären, Abstimmungen zu vereinfachen und durchgängig hochwertige Modelle zu erstellen.
CAD- und BIM-Software
Wir können die Daten für folgende Software aufbereiten:
Der ideale Partner – für die Weiterverarbeitung der Punktewolke arbeiten wir mit den Profis.

Miviso – der ideale Partner
Miviso ist Spezialist für die digitale 2D- und 3D-Modellierung von Gebäuden aus Punktwolken.
Das Team aus über 30 CAD- und BIM-Spezialistinnen und -Spezialisten hat sich aus der Begeisterung für die Erstellung und Nutzung hochwertiger, massgeschneiderter 2D-Pläne und 3D-Modelle für die Planung und den Betrieb von Gebäuden entwickelt. Die Erfahrung und die bewährten Prozesse zeigen sich in der Zufriedenheit der Projektpartner sowie in der Qualität von bereits mehreren tausend modellierten Gebäudemodellen.




